Стеклянные пол - потолки - стены
Одним из направлений нашей компании является проектирование, изготовление и установка стеклянных стен (как полностью состоящие из стекла так и стены-колонны, облицованные стеклом), стеклянных полов любой степени сложности с установкой несущих подконструкций (при необходимости), разработка и монтаж стеклянных потолков (как «навесных» на точечных –свисающих несущих креплениях, так и облицовка существующего –как правило бетонного—потолка. При выполнении работ по остекление стен-потолков-полов используют только специальные стекла: либо закаленные, закаленные с пленкой, либо многослойный закаленный триплекс. Толщина стекла при этом специально просчитывается , исходя из нагрузок на него во время эксплуатации и может варьироваться от 6 до 40 мм .
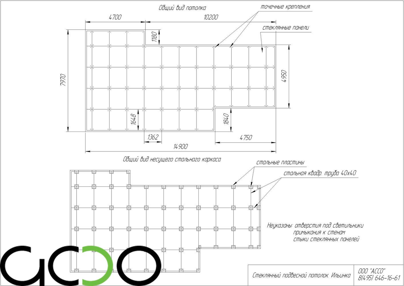
При установке стекла на потолок: используется закаленное стекло с пленкой, либо стекло--закаленный триплекс, для избежаний возможных травм находящихся в помещении людей при его разрушении по разным причинам. Стеклянные полотна потолка как правило крепятся через специальные отверстия в них на точечные нержавеющие либо металлические крепления, устанавливаемые снаружи «заподлицо» с возводимой плоскостью потолка . При небольших площадях остекления—стекло может крепиться на специальный каркас-штапик по периметру.
Очень часто указанные работы применяются в современных торговых центрах, коттеджных загородных домах, в офисных помещениях, при установки «открытого пространства» над водной поверхностью—например стеклянный пол над аквариумом-бассейном. При проектировании-установки стеклянных полов необходимо рассчитать нагрузки на него во время эксплуатации, просчитать-спроектировать надежный каркас на который устанавливается стеклянный пол. При монтаже стеклянных полов как правило используется многослойный закаленный триплекс толщиной до 40-50 мм (и возможно более), состоящий из 4-х-5-ти закаленных стекол по 10 мм толщиной каждое. Необходимо учитывать, что стеклянный пол устанавливается с технологическими зазорами между полотнами стекла, которые впоследствии либо закрываются декоративными вставками (например из нержавеющей стали) или заполняются специальным силиконом для стекла.
Кроме только закаленного стекла, которое не удерживает тепло внутри помещения, в случае остекления например потолка-пола между помещениями на разных этажах, одно из которых «холодное»--можно так же изготовить стеклопакет , сочетающий в себе и надежность—возможность хождения по нему сверху--и «энергосбережение».
При проектировании и монтаже предложим Заказчику несколько цветовых вариантов изготовления-облицовки стеклом: от прозрачного, до матового и тонированного в массе—с учетом привязки к существующему внутреннему интерьеру помещения. При облицовки-потолка стеклом по желания Заказчика—могут прорезаться на стадии изготовления стекла—отверстия-вырезы под осветительные приборы и т.д. Можем предложить использование при облицовки стен-колонн-потолков вариант обрамления «битым стеклом»--когда внутреннее стекло в состоящим из 3- закаленных стекол-триплексе специально бьется при изготовлении и получается визуальный эффект «разбитого стекла».









